Часто при установке отопления владельцы частных домов совершают одну и ту же ошибку. Они начинают монтаж без профессионального проекта.
Зачем тратить время и деньги, когда можно сразу купить котлы, радиаторы, трубы, и смонтировать? Такое решение скрывает большие риски и проблемы для владельца дома. Вместе с экспертами «Тепло пожаловать» расскажем, почему стоит доверить эту задачу специалистам.
Эффективное отопление начинается с проекта: почему это важно
Если же все делать «на глаз», можно не только купить недостаточно количество «расходников», но и столкнуться с проблемами неравномерного прогревания помещений. Получение надёжной, комфортной и экономичной системы отопления невозможно без комплекса инженерных расчётов.
Бывает, что даже в одном доме комнаты с одинаковым объёмом имеют свои особенности: расположение в южной или северной части дома, угловое расположение и т. д. Все эти нюансы влияют на размер теплопотерь.
Чтобы избежать «недогрева» помещений, застройщики прибегают к принципу: «много не – мало». Они наращивают количество секций в радиаторах, а следом увеличивается объём отопительной системы: нужен большего размера мембранный бак, более мощный циркуляционный насос, больше топлива и так далее. Всё это очень удорожает систему. Чтобы такого не было – разрабатывается проект.
Проектирование системы отопления частного дома имеет ряд существенных преимуществ:
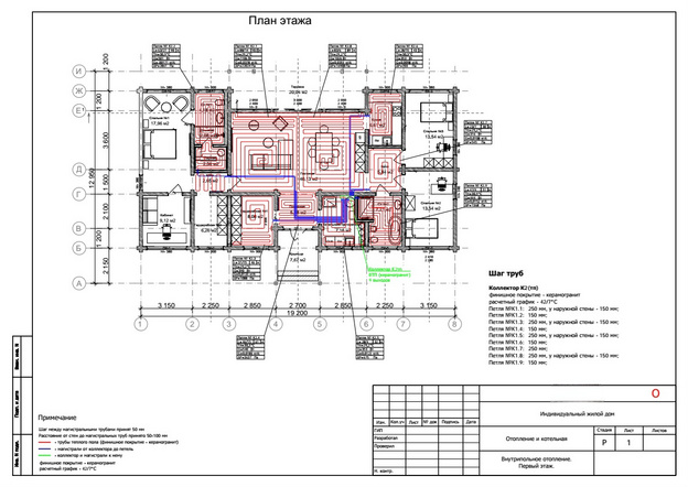
Во-первых, по проекту можно точно посчитать требуемое количество труб, радиаторов, соединительных элементов. У вас на руках будет полная спецификация и вы сможете самостоятельно оценить уровень цен.
Во-вторых, будет понятно, где будут проходить трубы, установлены батареи, нагревательный котёл. Исходя из этого, проще планировать дальнейшие отделочные работы.
В-третьих, грамотно составленный проект позволит учесть реальные теплопотери, энергоэффективность здания. А значит дома всегда будет тепло и комфортно.
В-четвертых, проект автономного отопления позволяет снизить общие затраты на обустройство, дальнейшую эксплуатацию нагревательной системы.
В-пятых, проект учтёт все правила безопасности, что положительно повлияет на процесс дальнейшей эксплуатации системы отопления.
Ваша котельная будет работать как часы: проектирование + профилактика
Котельная – это основной источник тепла и комфорта в частном доме или коттедже. Существуют правила монтажа котельных и строгий перечень необходимого оборудования.
Для любой котельной требуется отдельное помещение. Это может быть подвал или комната с окном. Главное, чтобы доступ в котельное помещение был закрыт от детей или гостей вашего дома. Некоторые хотят разместить котельную вообще вне дома.
Специалисты по проектированию «Тепло Пожаловать» могут разработать проект как для небольшой котельной от 5 кв. метров, так и для большой.
Примеры работ:


Два раза в год необходимо проводить профилактику котельной: перед отопительным сезоном и в конце
Во время отопительного периода важно периодически проверять котельное помещение и проводить осмотр на наличие протечек, запаха газа и приток воздуха.
Контакты сервисного центра «Тепло Пожаловать»: г. Киров, ул. Герцена, 86. Оставить заявку можно по номерам: +7 (8332) 21 44 40, +7 922 923 44 40 (привязан к аккаунту Макс) или на сайте teplo43.ru.
Режим работы сервисного центра: понедельник-пятница с 8:00 до 17:00. Выходные дни – суббота-воскресенье.

Почему стоит заказать проект именно в «Тепло пожаловать»?
Во-первых, здесь работают квалифицированные специалисты, которые учтут все особенности вашего дома и специфику монтажа. Они сделают не просто проект, а рабочий документ, который максимально упростит дальнейшие работы.
Компания «Тепло Пожаловать» имеет за плечами большой опыт в реализации проектов для малоэтажных строений площадью от 40 до 1000 кв.м.
Во-вторых, разрабатывают проекты в соответствии с нормативами СП.60.1330.2020. Это гарантирует безопасность эксплуатации системы и её соответствие законодательству.
«Тепло Пожаловать» предлагают комплексный подход: можно заказать проектирование всех инженерных сетей одновременно – отопления, водоснабжения и канализации. И при заказе монтажа вместе с проектом клиент получает выгодные условия. Кроме того, при покупке оборудования в компании клиенты получают на него скидку 15%.
В «Тепло Пожаловать» предусмотрен бесплатный выезд инженера на объект для замеров, составления рабочей схемы и предварительной калькуляции – он возможен уже на следующий день после заявки.
Сколько времени занимает проект и от чего зависит его стоимость?
Рабочая схема готовится от одного до трёх дней, полный проект – от двух до трёх недель. Стоимость зависит от площади дома, количества этажей и сложности системы отопления, включая автоматику. При этом можно оптимально подстроить смету под бюджет клиента.
Заказывая проект в «Тепло Пожаловать», вы получаете не просто отопление, а гарантированный комфорт, безопасность и экономию на долгие годы. Не повторяйте чужие ошибки – доверьтесь профессионалам!
Как оставить заявку на проект отопления?
Связаться с компанией можно через официальный сайт teplo43.ru, через личные сообщения в группе во Вконтакте «Тепло Пожаловать», по телефону + 7 922 916 55 52 (привязан к аккаунту в Макс).
Центр проектирования работает: понедельник-пятница с 8:00 до 18:00. Выходные дни – суббота-воскресенье.

Чаще всего клиенты обращаются с готовым планом дома, и тогда выезд не обязателен. Если плана нет, специалисты приедут на замеры в любой район Кировской области по согласованию.
– Хочу поблагодарить компанию «Тепло Пожаловать» за отличную работу. Проект сделали быстро, по стоимости всё честно и понятно. Понравилось, что менеджеры не просто приняли заказ, а реально вникли в задачу, задали уточняющие вопросы и предложили решения, о которых я сам даже не думал. В итоге проект получился лучше, чем ожидал. Остался доволен, могу рекомендовать! – отмечает монтажник Александр Чумаченко.

Фото: предоставлено «Тепло пожаловать»
Erid:2W5zFJLzVFo, реклама, ИП Хорошавин Алексей Викторович, ИНН 434585771750.